Venøvej 4
456.000 kr./år

Nyopførte kontor og lagerlokaler i Hjørring
• Lagerfaciliteter fra 65 m²• Nyopført ejendom i høj stand
• Velbeliggende i nyt erhvervsområde tæt på motorvej
• Fleksibel indretning og opdeling fra 65 - 735 m²
• Bred anvendelse til kontor, lager/logistik & lettere produktion
Her er muligheden for at indgå lejekontrakt på nyopførte lokaler i det nye attraktive erhvervsområde på Anholtvej/Venøvej i Hjørring sydøst.
Ejendommen opføres med et samlet erhvervsareal på 735 m².
Lokalplanen tillader en bred anvendelse til erhvervsformål med lettere industri- og værkstedsvirksomhed, mindre lagervirksomhed samt offentlige formål i form af værksteds og produktionsaktiviteter, som ikke medfører skærpede miljøkrav for de omkringliggende virksomheder.
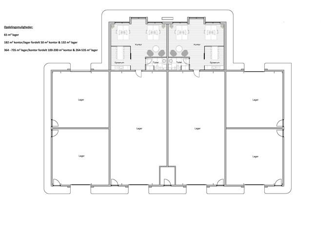
Der vil være mulighed for opdeling, hvorved der tilbydes følgende 3 lejemuligheder:
- 65 m² lager til en årlig leje på kr. 32.500
- 182 m² kontor/lager fordelt 50 m² kontor & 132 m² lager - årlig leje kr. 114.000
- 364 - 735 m² lager/kontor fordelt 100-200 m² kontor & 264-535 m² lager - årlig leje kr. 228.000-456.000
Ønskes ejendommen overtaget til eget domicil, vil der naturligvis også være mulighed for leje af hele bygningen, forudsat at den ikke er blevet deludlejet. For nærmere information kontakt EDC Erhverv Poul Erik Bech.
Afstand til
- Hvidegårde (Sæbyvej / Hjørring)315 m
- Hjørring St.2,8 km
- E 39 - Hirtshalsmotorvejen3,9 km
- Adresse
- Venøvej 4
- Sagsnr.
- 914004496
- Ejendomstype
- Lager/Produktion
- Årlig leje
- 456.000 kr./år
- Erhvervsareal
- 2.085 m²
- Kælder
- 53 m²
Nøgletal
- Grundareal
- 8.500 m²
- Bebygget
- 2.085 m²
- Erhvervsareal
- 2.085 m²
- Etageareal
- 2.085 m²
- Kælder
- 53 m²
Arealer
- Årlig leje
- 456.000 kr./år
- Månedlig leje
- 38.000 kr.
- Årlig leje pr. m²
- 218 kr.
- Bruttoleje pr. år
- 456.000 kr.
- Månedlig bruttoleje
- 38.000 kr.
- Årlig bruttoleje pr. m²
- 218 kr.
- Depositum
- 228.000 kr.
- Momsregistreret
- Ja
- Afståelsesret
- Nej
Økonomi
- Uopsigelighed fra lejer
- Efter aftale
- Uopsigelighed fra udlejer
- Efter aftale
- Opsigelse
- 6 måneder
- Indvendig vedligeholdelse
- Lejer
- Udvendig vedligeholdelse
- Udlejer
- Lejeregulering
- NPI dog min 3%
- Afståelsesret
- Nej
Lejeforhold
- Opvarmningstype
- Udefineret
- Omfattet af energimærke
- Nej
Ejendommen

Anders Bjørn Jensen
Erhvervsmægler, MDE, Erhverv Vendsyssel

Michael Stilling
MRICS Registered Valuer, Partner, ejendomsmægler & DiplomValuar, MDE

