Holstebrovej 78
11.425.000 kr.

Velbeliggende butiksejendom med gode parkeringsforhold udlejet til solid lejer; Hifive
• Lejer fraflytter tidligst 01.10.2033• Attraktiv beliggenhed i City Vest i Skive
• Gode parkeringsforhold lige ved ejendommen
• Åbent og indbydende butikslokale
• Kaution fra velkonsolideret moderselskab
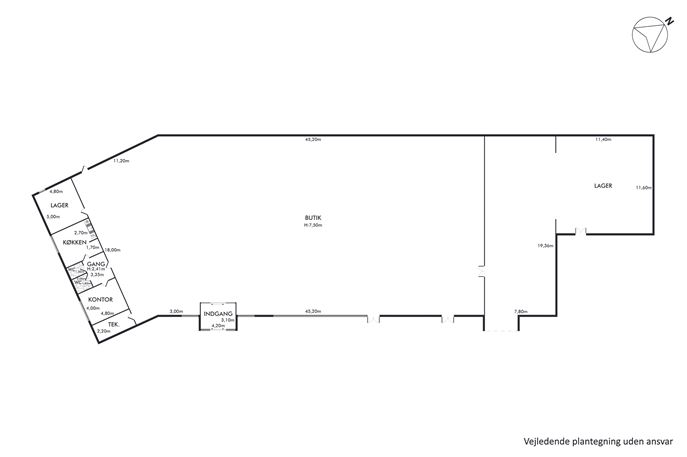
Butikslokalet andrager i alt 1.528 m² og er udlejet til Hi Five.
Lokalet er beliggende mellem JYSK og Skousen i det aktive handelscenter ”City Vest”. Her findes bl.a. Jysk, Rema1000, Fri BikeShop, Maxizoo, Apotek mm.
Ejendommen er indrettet med et stort, åbent butikslokale med en god loftshøjde på ca. 3,5 meter under belysningen og varmepaneler. Personalefaciliteter i form af toiletter, kantine og kontor forefindes, samt et lagerafsnit i modsatte ende med adgang udefra via dobbeltdør og port.
Ejendommen opvarmes med fjernvarme med strålevarmer i butikslokalet, salgsarealet er forsynet med aircondition og belysning med 1.000 lux.
Området har en stor parkeringsplads uden tidsbegrænsning, som deles med de øvrige butikker.
Faciliteter
- KøkkenfaciliteterJa
 - ToiletterJa
 
Afstand til
- City Vest (Skive kom)235 m
 - Skive St.2,0 km
 
- Adresse
 - Holstebrovej 78
 - Sagsnr.
 - 912112209
 - Ejendomstype
 - Detail
 - Handelstype
 - Investering
 - Pris
 - 11.425.000 kr.
 - Afkast
 - 7,00 %
 - Etageareal
 - 1.528 m²
 
Nøgletal
- Bebygget
 - 1.528 m²
 - Erhvervsareal
 - 1.528 m²
 - Etageareal
 - 1.528 m²
 
Arealer
- Pris
 - 11.425.000 kr.
 - Pris/m²
 - 7.477 kr.
 - Lejefaktor
 - 13.04
 - Lejeindtægt
 - 876.000 kr.
 - Årlig lejeindtægt pr m²
 - 573 kr.
 - Årlige driftsudgifter
 - 75.927 kr.
 - Årlige driftsudgifter pr m²
 - 50 kr.
 - Afkast
 - 7,00 %
 - Afskrivningsberettiget
 - Ja
 - Momsregistreret
 - Ja
 
Økonomi
- Forsikringen omfatter:
 - Brand, Bygning, Udvidet rørskade, Svamp/Insekt
 - Byggeår / Ombygget
 - 1988
 - Omfattet af energimærke
 - Ja
 - Energimærke
 - C
 
Ejendommen



