Østerågade 4C ST
198.100 kr./år


Højloftet butikslejemål – nabo til Shaping New Tomorrow på Østerågade
• Flot butikslejemål med højt til loftet• Nabo til Shaping New Tomorrow og genbo til Gammel Torv
• Flere anvendelsesmuligheder
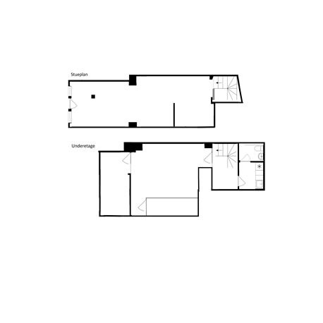
• 70 m² i stueplan og 83 m² anvendelig underetage
• God synlighed og stort kundegrundlag udenfor døren
Flot moderniseret butikslejemål på ca. 70 m² med niveaufri indgang fra Østerågade. Lejemålet har 2 udstillingsvinduer samt indgang via glasdør og er indrettet med højloftet butikslokale, som giver en fantastisk rumfølelse. Bagerst i butikken er der trappe til meget anvendelig underetage med god loftshøjde, som er indrettet med mindre køkken, toilet samt godt lager.
Lejemålet kan, udover butik, anvendes til takeaway, hvor der ikke er behov for udsugning, da dette ikke er muligt at etablere.
Østerågade er et centralt knudepunkt i Aalborg centrum som dagligt passeres af mange tusinde mennesker.
Plusbussen har stoppested kort fra lejemålet samt den passerer flere gange i løbet af dagen, den forbinde Vestbyen med det nye Universitets Hospital og Aalborg Universitet i Aalborg Øst.
På Østerågade findes bl.a. følgende butikker og restauranter: Shaping New Tomorrow herre og dame butik, Louis Nielsen, Ecco, Aalborg Boghandel, The Burger Concept samt McDonalds og Nadias Sandwich.
Faciliteter
- FacadelængdeEjendommen har en facadelængde på 2,5 meter
- Køkkenfacilite terJa
- ToiletterJa
Afstand til
- Nytorv (Østeraagade / Aalborg)187 m
- Aalborg Vestby St.2,1 km
- Ådalsmotorvejen3,4 km
- Adresse
- Østerågade 4C ST
- Sagsnr.
- 912112208
- Ejendomstype
- Detail
- Årlig leje
- 198.100 kr./år
- Erhvervsareal
- 153 m²
- Kælder
- 83 m²
Nøgletal
- Erhvervsareal
- 153 m²
- Etageareal
- 153 m²
- Kælder
- 83 m²
Arealer
- Årlig leje
- 198.100 kr./år
- Månedlig leje
- 16.508 kr.
- Årlig leje pr. m²
- 1.294 kr.
- Årlige driftsudgifter
- 23.900 kr.
- Månedlige driftsudgifter
- 1.991 kr.
- Årlige driftsudgifter pr m²
- 156 kr.
- Bruttoleje pr. år
- 222.000 kr.
- Månedlig bruttoleje
- 18.500 kr.
- Årlig bruttoleje pr. m²
- 1.450 kr.
- Depositum
- 99.050 kr.
- Aconto Vandudgift
- 3.000 kr.
- Aconto Varmeudgifter
- 6.000 kr.
- Momsregistreret
- Ja
- Afståelsesret
- Ja
Økonomi
- Uopsigelighed fra lejer
- 2 år
- Uopsigelighed fra udlejer
- 4 år
- Opsigelse
- 6 måneder
- Indvendig vedligeholdelse
- Lejer
- Udvendig vedligeholdelse
- Udlejer
- Lejeregulering
- NPI, dog min 2% og max 4%
- Afståelsesret
- Ja
Lejeforhold
- Opvarmningstype
- Fjernvarme/blokvarme (radiatorsystemer eller varmluftanlæg)
- Byggeår / Ombygget
- 1910 / 2002
- Omfattet af energimærke
- Ja
- Energimærke
- C
Ejendommen


Martin Brasholt Mikkelsen
Partner, ejendomsmægler, MDE

