Gørtlervej 21
315.000 kr./år

Velbeliggende erhvervsejendom med god synlighed
• 507 m² velindrettet erhvervslejemål fordelt med lager og kontorer• Stort, åbent lager samt 3 seperate rum i stueplan
• Lyse og præsentable kontorer på 1. sal med tekøkken og toilet
• Mulighed for skiltning mod Østre Allé med høj synlighed
• Gode p-forhold lige ved ejendommen
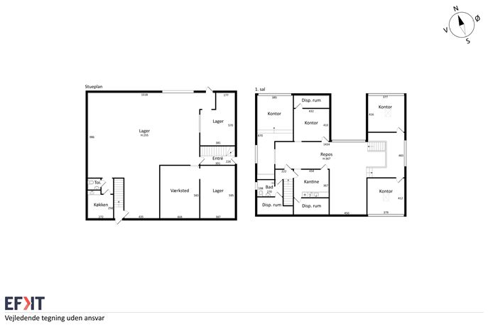
På Gørtlervej 21 udbydes nu et velindrettet erhvervslejemål på i alt 507 m² fordelt på to plan. Lejemålet kombinerer funktionelle lagerfaciliteter med lyse og præsentable kontorer – ideelt til den moderne virksomhed, der ønsker både plads og en professionel ramme om sin hverdag.
I stueplan findes et stort, åbent lagerområde, tre separate rum med fleksibel anvendelse, toilet samt et praktisk tekøkken. På 1. sal er der repos med adgang til fire lyse og præsentable kontorer/møderum, toilet og endnu et tekøkken.
Ejendommen fremstår i en tidssvarende stil med facade i stålprofiler og tag af tagpap. Der er mulighed for profilering med skiltning ud mod Østre Allé, hvilket giver virksomheden høj synlighed i området.
Der er gode p-forhold lige ved ejendommen, hvilket giver gode forhold for både medarbejdere og gæster.
Lejemålet henvender sig til virksomheder, der ønsker en attraktiv kombination af lager og kontor i en central beliggenhed i Aalborg – tæt på byens infrastruktur og med let adgang til både motorvej og centrum.
Faciliteter
- AlarmJa
- KøkkenfaciliteterJa
- ParkeringJa
- PorteJa
- ToiletterJa
Afstand til
- Aalborg Busterminal (Område C)618 m
- Aalborg St.1,2 km
- Ådalsmotorvejen1,8 km
- Adresse
- Gørtlervej 21
- Sagsnr.
- 912112057
- Ejendomstype
- Lager/Produktion
- Årlig leje
- 315.000 kr./år
Nøgletal
- Grundareal
- 619 m²
- Bebygget
- 350 m²
- Etageareal
- 507 m²
Arealer
- Årlig leje
- 315.000 kr./år
- Månedlig leje
- 26.250 kr.
- Årlig leje pr. m²
- 621 kr.
- Bruttoleje pr. år
- 315.000 kr.
- Månedlig bruttoleje
- 26.250 kr.
- Årlig bruttoleje pr. m²
- 621 kr.
- Depositum
- 157.500 kr.
- Elektricitet
- Betales direkte til forsyningsselskab
- Momsregistreret
- Nej
- Afståelsesret
- Nej
Økonomi
- Uopsigelighed fra lejer
- 2 år
- Uopsigelighed fra udlejer
- 4 år
- Opsigelse
- 6 måneder
- Indvendig vedligeholdelse
- Lejer
- Udvendig vedligeholdelse
- Udlejer
- Lejeregulering
- NPI, dog min 2%
- Overtagelse
- Efter aftale
- Afståelsesret
- Nej
Lejeforhold
- Opvarmningstype
- Udefineret
- Byggeår / Ombygget
- 2005
- Omfattet af energimærke
- Ja
- Energimærke
- A2010
Ejendommen


Frank Jensen
Direktør, partner, ejendomsmægler, MDE

