Langerak 19
854.850 kr./år

Moderne og fleksibelt kontorlejemål hos Port of Aalborg
• Spændende kontor hos Port of Aalborg• Mulighed for kantineordning
• Fleksibel indretning og arealer
• Attraktivt område med mange virksomheder
• Gode parkeringsforhold
Velkommen til et inspirerende og moderne kontormiljø hos Port of Aalborg – ideelt for virksomheder, der ønsker at være en del af et dynamisk erhvervsområde med mange andre spændende aktører.
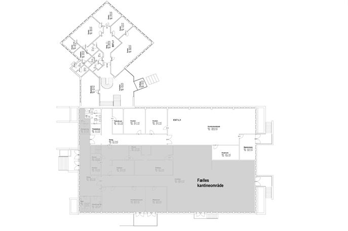
Lejemålet byder på en præsentabel ankomst i en foyer med dobbelt loftshøjde, som fungerer som hjertet i lejemålet. Herfra er der adgang til tre hovedområder, der p.t. er indrettet med en kombination af åbne kontorlandskaber og cellekontorer i varierende størrelser. Dertil kommer flere mødelokaler samt toiletkerner.
Lokalerne er lyse, imødekommende og udstyret med moderne faciliteter som ventilationsanlæg og LED-belysning. Indretningen er fleksibel og kan let tilpasses individuelle behov – uanset om der er behov for åbne kontorer, enkeltmandskontorer eller flere mødefaciliteter. Det giver gode muligheder for at skalere og tilpasse arbejdspladsen i takt med virksomhedens udvikling.
Der er direkte adgang til en fælles kantine med kantineordning, som sikrer medarbejderne et godt og nemt måltid i løbet af arbejdsdagen.
Til lejemålet hører ca. 35 egne parkeringspladser, og derudover er der adgang til fælles parkeringsomr åde ca. 150 meter fra hovedindgangen.
Beliggenheden er særdeles attraktiv med kun ca. 10 minutters kørsel til motorvej E45 – med tilkørsel i både syd- og nordgående retning.
Faciliteter
- KantineJa
- MødefaciliteterJa
- VinduestypeBlandet
Afstand til
- Dokvej (Langerak / Aalborg)159 m
- E 45 - Nordjyske Motorvej6,1 km
- Adresse
- Langerak 19
- Sagsnr.
- 912111931
- Ejendomstype
- Kontor
- Årlig leje
- 854.850 kr./år
Nøgletal
- Etageareal
- 1.065 m²
Arealer
- Årlig leje
- 854.850 kr./år
- Månedlig leje
- 71.237 kr.
- Årlig leje pr. m²
- 802 kr.
- Årlige driftsudgifter
- 5.880 kr.
- Månedlige driftsudgifter
- 490 kr.
- Årlige driftsudgifter pr m²
- 6 kr.
- Bruttoleje pr. år
- 860.730 kr.
- Månedlig bruttoleje
- 71.727 kr.
- Årlig bruttoleje pr. m²
- 808 kr.
- Depositum
- 427.425 kr.
- Momsregistreret
- Ja
- Afståelsesret
- Nej
Økonomi
- Uopsigelighed fra lejer
- Efter aftale
- Uopsigelighed fra udlejer
- Efter aftale
- Opsigelse
- 6 måneder
- Indvendig vedligeholdelse
- Lejer
- Udvendig vedligeholdelse
- Udlejer
- Lejeregulering
- NPI dog min. 2%
- Overtagelse
- Efter aftale
- Afståelsesret
- Nej
Lejeforhold
- Opvarmningstype
- Fjernvarme/blokvarme (radiatorsystemer eller varmluftanlæg)
- Antal etager
- 3
- Byggeår / Ombygget
- 1973
- Omfattet af energimærke
- Ja
- Energimærke
- C
Ejendommen

Martin Brasholt Mikkelsen
Partner, ejendomsmægler, MDE


