Lavavej 16
1.690.250 kr./år

Lager-/ produktionsejendom med gode tilhørende kontor er beliggende på Aalborg havn
• Ca. 2.182 m² lager og ca. 1.100 m² kontor• Mulighed for kantineordning
• Fleksibel indretning
• Attraktivt område med mange virksomheder
• Gode parkeringsforhold
• Mulighed for leje af yderligere lager
Bliv en del af erhvervsparken hos Port of Aalborg A/S, hvor denne lager-/produktionsejendom med veludnyttede kontorlokaler på Lavavej16 udbydes til leje.
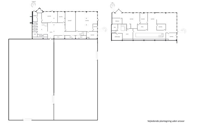
Lejemålet er fordelt med ca. 2.182 m² lager og produktionsareal med en loftshøjde på ca. 5,5 meter og ca. 1.100 m² kontor fordelt på 2 etager.
Kontoret har en maritim inspiration og er i stueplan indrettet med indgangsparti med adgang fra parkeringspladsen. Flot hall medtrappe til 1. sal samt adgang til toiletkerne. Store åbne kontorområder samt flere mødelokaler. Herudover flere depot-og printerrum. 1. salen er ligeledes indrettet med store åbne kontorområder og møderum samt kig udover området. Kontoret er udstyret med ventilation.
Fra kontoret er der direkte adgang til lager-/produktionsarealet som udgøres af 2 haller på ca. 1.000 m² pr. stk. Loftshøjden under spær er ca. 5,5 m. Der er port adgang til begge haller og ved den nordligste del sidder porten i forbindelse med et overdækket areal på ca. 300 m².
Beliggenheden blandt mange andre virksomheder i området, er en ideel placering for at netværke og samarbejde med ligesindede virksomheder. Mulighed for deltagelse i fælles kantineordning.
Kontorlokalerne har gode parkeringsforhold, hvilket gør det bekvemt for både medarbejdere og kunder at besøge lejemålet.
Mulighed for leje af udenomsareal for kr. 50 pr. m².
Faciliteter
- KantineJa
- MødefaciliteterJa
- PorteJa
- VentilationJa
- VinduestypeBlandet
Afstand til
- Dokvej (Langerak / Aalborg)34 m
- E 45 - Nordjyske Motorvej6,0 km
- Adresse
- Lavavej 16
- Sagsnr.
- 912111383
- Ejendomstype
- Kontor
- Årlig leje
- 1.690.250 kr./år
Nøgletal
- Etageareal
- 3.274 m²
Arealer
- Årlig leje
- 1.690.250 kr./år
- Månedlig leje
- 140.854 kr.
- Årlig leje pr. m²
- 516 kr.
- Bruttoleje pr. år
- 1.690.250 kr.
- Månedlig bruttoleje
- 140.854 kr.
- Årlig bruttoleje pr. m²
- 516 kr.
- Depositum
- 845.125 kr.
- Momsregistreret
- Ja
- Afståelsesret
- Nej
Økonomi
- Uopsigelighed fra lejer
- Efter aftale
- Uopsigelighed fra udlejer
- Efter aftale
- Opsigelse
- 6 måneder
- Indvendig vedligeholdelse
- Lejer
- Udvendig vedligeholdelse
- Udlejer
- Lejeregulering
- NPI dog min 2%
- Overtagelse
- Efter aftale
- Afståelsesret
- Nej
Lejeforhold
- Opvarmningstype
- Fjernvarme/blokvarme (radiatorsystemer eller varmluftanlæg)
- Byggeår / Ombygget
- 1973 / 1999
- Omfattet af energimærke
- Ja
- Energimærke
- C
Ejendommen

Martin Brasholt Mikkelsen
Partner, ejendomsmægler, MDE


