Torvegade 3, 1. & 2. sal
2.995.000 kr.

2 stk. erhvervsejerlejligheder med gode adgangsforhold, direkte fra Torvegade
• Det samlede etageareal til ny ejers disposition• Nær torvet i Nørresundby
• Mange anvendelsesmuligheder
• Oplagt som konverteringscase (beboelse)
• Fremstår apteret til klinik (senest tandlægepraksis)
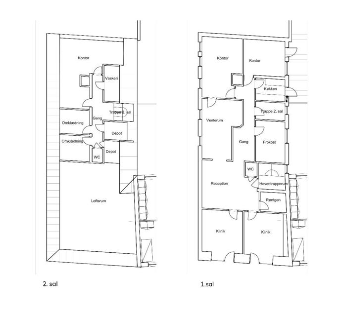
Torvegade 3B består af arealer i 3 plan, og omfatter 2 erhvervsejerlejligheder.
Indgangsparti i stueplan samt stort vinduesparti til gaden. Det samlede areal har senest været benyttet til tandlægeklinik, og fremstår indrettet her efter.
Førstesalen omfatter et samlet areal på 195 m², og er i dag opdelt i flere mindre rum, med flere ’lette’ vægge, og toiletkerne, samt kantine/køkken. Førstesalen har eksklusiv brugsret til stor terrasse mod gården.
2. sal er på 160 m²og fremstår indrettet til kontor, men har senest været anvendt til lager/arkiv.
Facaderne er af mursten, malet i en gul nuance. Taget et sadeltag belagt med eternitplader med asbest. Tilbygning mod terrassen er built-up belagt med tagpap.
Skitseforslag til opdeling i beboelseslejligheder foreligger, men det påhviler køber selv at indhente en godkendelse her til, såfremt at køber erhverver med henblik på udvikling.
Faciliteter
- Parkering0
 
- Adresse
 - Torvegade 3, 1. & 2. sal
 - Sagsnr.
 - 91204795
 - Ejendomstype
 - Kontor
 - Handelstype
 - Brugerejendom
 - Pris
 - 2.995.000 kr.
 - Etageareal
 - 342 m²
 
Nøgletal
- Erhvervsareal
 - 342 m²
 - Etageareal
 - 342 m²
 
Arealer
- Pris
 - 2.995.000 kr.
 - Pris/m²
 - 8.757 kr.
 - Vurderingsår
 - 2020
 - Ejendomsværdi
 - 409.600 kr.
 - Grundværdi
 - 409.600 kr.
 
Økonomi
- Byggeår / Ombygget
 - 1890
 - Omfattet af energimærke
 - Ja
 - Energimærke
 - D
 
Ejendommen


Michael Stilling
MRICS Registered Valuer, Partner, ejendomsmægler & DiplomValuar, MDE

