Lager/Produktion fra EDC

Metervej 1

8940 Randers SV

8.000.000 kr.

Brugerejendom - 1.396 m²
Nyhed

Er­hverv­se­jen­dom til salg i eftertragtet erhvervsområde

Er­hvervs­om­rå­det omkring Metervej har de seneste 3-4 år været i rivende udvikling, hvor det ene nye domicil efter det andet skyder i vejret, og er­hvervs­grun­de­ne kan der efterhånden snart meldes udsolgt på.

Vi har nu fornøjelsen af at udbyde Metervej 1 til salg. En særdeles velbeliggende ejendom i det populære område, hvor du ikke skal vente på at bygge, men blot kan flytte ind.

Ejendommen ligger på en 8.373 m² stor grund, hvor der jf. lokalplanen kan udstykkes en grund fra på 4.000 m².

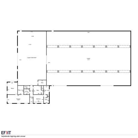
Selve ejendommen er på i alt 1.396 m², og tæller 171 m² kontor/ad­mi­ni­stra­tions­byg­ning som blev bygget til i 2020. Denne fremstår præsentabel med hvide vægge og lofter, samt høje fodpaneler mv. Her er der kontor, konferencerum, arkiv/printerrum, kantine/køkken og 2 mindre rum evt. til kontor, bad med to brusere samt 2 toiletter.
Selve hallen er på 1.225 m² og rummer en mindre del på ca. 200 m² som er opvarmet, samt den resterende del som er uopvarmet og uisoleret. Der er 3 porte i ejendommen. Én stor port i gavlen som måler b 5,4 x h 5,3 m. 2 porte i siden af bygningen på b 5,5 x h 4,2 m og b 3,7 x h 4,2 m.

Udenomspladsen er delvist grusbelagt og den resterende del fremstår med græs.

Er­hvervs­om­rå­det i Sdr. Borup udemærker sig med sin tætte beliggenhed til mo­tor­vejs­af­kørs­len som du når på bare et par minutter, derudover er området gearet til tung trafik.

Af naboer kan nævnes: Toppac, Randers Jernstøberi, GLS, Sekura Cabins, Litotryk, Vulkan mv.

Faciliteter

  • Ampere50 ampere
  • Bad og omklædningJa
  • KantineJa
  • Køk­ken­fa­ci­li­te­terJa
  • Mø­de­fa­ci­li­te­terJa
  • ØvrigeArkiv/printerrum
  • ØvrigeKonferencerum
  • Øvrigekontor
  • Portebredde 3,7 x højde 4,2
  • Portebredde 5,4 x højde 5,3
  • Portebredde 5,5 x højde 4,2
  • ToiletterJa
  • UdenomsarealerGrus og græs

Afstand til

  • Metervej (Randers Kom)203 m
  • E 45 - Nordjyske Motorvej1,5 km

Nøgletal

Adresse
Metervej 1
Sagsnr.
892515067
Ejendomstype
Lager/Produktion
Handelstype
Brugerejendom
Pris
8.000.000 kr.
Etageareal
1.396 m²

Arealer

Grundareal
8.373 m²
Bebygget
1.396 m²
Erhvervsareal
1.396 m²
Kontorareal
171 m²
Pro­duk­tions­a­re­al
1.225 m²
Etageareal
1.396 m²

Økonomi

Pris
8.000.000 kr.
Pris/m²
5.731 kr.
Ejen­doms­skat­ter
19.873 kr.
Grundskyld
16.824 kr.
Dækningsafgift
3.048 kr.
For­sik­rings­præ­mie
14.935 kr.
Vurderingsår
2023

Ejendommen

Byggeår / Ombygget
2009
Omfattet af energimærke
Ja
Energimærke
B

Gode kunderelationer og stærkt lokalkendskab

Den gode relation er alfa og omega i mit arbejde og i min hverdag. Mine kun­de­re­la­tio­ner tilsat et stærkt lokalt kendskab giver mig optimale forudsætninger for at sikre dig den gode handel. Og lige præcis ’den gode handel’ er det, jeg altid stræber efter på dine vegne.

Malte Gjandrup Møller

Ejendomsmægler, MDE

malte@edc.dk21 75 17 05EDC Erhverv Trio

EDC Erhverv Trio

Kristrupvej 59, 8960 Randers SØ

892@edc.dk70 28 88 30