Kongsdal Havn 4
7.500.000 kr.

Domicilejendom ved Mariager Fjord
Nu udbydes muligheden for at handle en gedigen domicilejendom, beliggende lige ud til Mariager Fjord ved Kongsdal Havn.Ejendommen er opført i 1987 i beton med søstensbelagte facader, og er tilbygget i 2004.
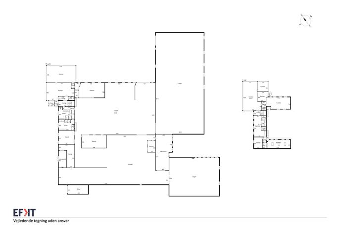
Ejendommen har et areal på i alt 3.520 m², fordelt på kontor, velfærd/omklædning, kantine og store lager/- produktionshaller.
Der er i hallen i Bygning 1 en loftshøjde på 5,5 meter til spær og en port (4,0 m høj x 4,0 m bred). Her findes der også en traverskran.
Bygning 3 som er tilbygget i 2004 har en loftshøjde på 6,2 meter til spær og en god stor port (4,6 m høj x 4,0 m bred)
Ejendommen er forsynet med 250 ampere.
Ejendommen er pt. udlejet til Bila A/S, som betaler en årlig husleje af kr. 842.754 + moms, og har en uopsigelig lejekontrakt som kan opsiges med 6 måneders varsel, til ophør d. 30. juni 2027.
Ejendommen overtages som udgangspunkt med nærværende lejeforhold. Hør nærmere hos EDC Erhverv.
Ejendommen kan handles via køb af anparterne i Kongsdal Havn 4 ApS, hvor der vil være en udskudt skat af ca. kr. 478.000
Faciliteter
- AdgangsforholdJa
- Bad og omklædningJa
- KablingJa
- KantineJa
- Porteen med h 4,0 m x b 4,0 m og en med h 4,6 m x b 4,0 m
- UdenomsarealerDelvist befæstet
- VinduestypeDobbelt glas
Afstand til
- Kongsdalvej (Daniavej / Mariagerfjord Kommune)320 m
- E 45 - Nordjyske Motorvej24,8 km
- Adresse
- Kongsdal Havn 4
- Sagsnr.
- 892515035
- Ejendomstype
- Lager/Produktion
- Handelstype
- Brugerejendom
- Pris
- 7.500.000 kr.
- Etageareal
- 3.520 m²
Nøgletal
- Grundareal
- 11.127 m²
- Bebygget
- 3.213 m²
- Erhvervsareal
- 3.520 m²
- Etageareal
- 3.520 m²
Arealer
- Pris
- 7.500.000 kr.
- Pris/m²
- 2.131 kr.
- Ejendomsskatter
- 13.301 kr.
- Grundskyld
- 13.301 kr.
- Forsikringspræmie
- 32.549 kr.
- Vurderingsår
- 2019
- Ejendomsværdi
- 7.300.000 kr.
- Grundværdi
- 556.400 kr.
Økonomi
- Byggeår / Ombygget
- 1987 / 2001
- Omfattet af energimærke
- Nej
Ejendommen

Godt købmandskab og stærk lokal forankring
Byens erhvervsliv har mit store fokus, og jeg har stærke relationer både i vores lokalsamfund og udenfor Randers. Indgående markedskendskab til vores by og omegn, forretningsforståelse og godt købmandsskab samt langvarige kunderelationer er mine vigtigste redskaber for at sikre en god handel

