Smedevænget 2
5.200.000 kr.

Præsentabel ejendom med mange anvendelsesmuligheder i Hadsund
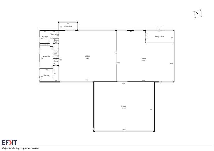
Regulær ejendom i det populære og veletablerede industriområde i Hadsund på 1.162 m².Ejendommen er tidligere anvendt til engrosbutik, er også ideel til lager og produktionsformål mv.
Lokalerne er inddelt i tre regulære haller. I gavlen er der velfærdsafsnit med frokoststue, kontorer og toiletter.
Indgang sker via flot indgangsparti med skydedøre. Herudover er der rulleport, samt en dobbeltdør til varerind-og udlevering.
Der er ca. 3.5 m i loftshøjde til spær.
Der er perlestensgulv i den ene af hallerne og i de to andre er der betongulv med epoxybelægning. Lofterne er beklædt med troldtektplader, og taget er tagpap. Der er vinduesbånd som giver et godt og naturligt lys i ejendommen.
Parkerings- og oplagringspladsen foran ejendommen er befæstet med coloc-sten.
Der er fjernevarme i ejendommen, som kører via strålevarme og kalorieferer.
Lokalplanen tillader følgende anvendelser:
Området udlægges til erhvervsområde for industrivirksomheder, værksteds- og håndværkerfirmaer, en-gros virksomheder, vareterminaler samt visse andre virksomheder i almindelighed, der ikke ved specielle generende egenskaber som støj, lugt, røg, rystelser eller udseende eller ved fremkaldelse af uforholdsmæssige store mængder spildevand vil være til væsentlig ulempe for de øvrige virksomheder.
Faciliteter
- AdgangsforholdJa
- Ampere50 ampere
- KøkkenfaciliteterJa
- Loftshøjde3,5 m til spær
- MødefaciliteterJa
- ParkeringJa
- ToiletterJa
- UdenomsarealerJa
Afstand til
- Fabriksvej (Aalborgvej / Hadsund)290 m
- Adresse
- Smedevænget 2
- Sagsnr.
- 892515018
- Ejendomstype
- Lager/Produktion
- Handelstype
- Brugerejendom
- Pris
- 5.200.000 kr.
- Etageareal
- 1.162 m²
Nøgletal
- Grundareal
- 3.775 m²
- Bebygget
- 1.162 m²
- Erhvervsareal
- 1.162 m²
- Etageareal
- 1.162 m²
Arealer
- Pris
- 5.200.000 kr.
- Pris/m²
- 4.475 kr.
- Ejendomsskatter
- 7.025 kr.
- Grundskyld
- 7.025 kr.
- Forsikringspræmie
- 14.711 kr.
- Vurderingsår
- 2019
- Ejendomsværdi
- 2.800.000 kr.
- Grundværdi
- 188.800 kr.
Økonomi
- Byggeår / Ombygget
- 1970 / 1985
- Omfattet af energimærke
- Ja
- Energimærke
- C
Ejendommen

Gode kunderelationer og stærkt lokalkendskab
Den gode relation er alfa og omega i mit arbejde og i min hverdag. Mine kunderelationer tilsat et stærkt lokalt kendskab giver mig optimale forudsætninger for at sikre dig den gode handel. Og lige præcis ’den gode handel’ er det, jeg altid stræber efter på dine vegne.

