Nørregade 11
1.395.000 kr.
Nyhed

Erhvervsejendom med udviklingspotentiale
Centralt i Grindsteds handelsgade udbydes denne velbeliggende ejendom med attraktive udviklingsmuligheder.Ejendommen på Nørregade 11 har tidligere fungeret som tøjbutik, men står i dag tom og klar til ny ejer – et ideelt udgangspunkt for den investor, der ønsker at skabe værdi gennem omdannelse, udlejning eller modernisering.
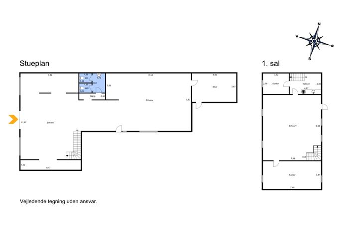
Ejendommen byder på et rummeligt butikslokale i stueplan med store facadevinduer og god synlighed ud mod Nørregade – et oplagt lejemål til detailhandel, klinik eller kontor.
På 1. salen er der mulighed for at etablere en bolig- eller kontorenhed, hvilket åbner for en attraktiv kombination af erhverv og boligudlejning.
Med sin centrale placering tæt på byens øvrige butikker, caféer og parkeringsmuligheder, er Nørregade 11 et oplagt valg for investorer, der ønsker at eje en ejendom i et aktivt og stabilt lokalområde.
Kontakt os for yderligere information eller for at aftale en fremvisning af Nørregade 11 – et investeringsprojekt med mange muligheder i hjertet af Grindsted.
Faciliteter
Afstand til
- Vestre Allé v Vestergade (Grindsted)194 m
- Adresse
- Nørregade 11
- Sagsnr.
- 873904303
- Ejendomstype
- Detail
- Handelstype
- Brugerejendom
- Pris
- 1.395.000 kr.
- Etageareal
- 476 m²
- Kælder
- 33 m²
Nøgletal
- Grundareal
- 488 m²
- Bebygget
- 269 m²
- Erhvervsareal
- 476 m²
- Etageareal
- 476 m²
- Kælder
- 33 m²
Arealer
- Pris
- 1.395.000 kr.
- Pris/m²
- 2.931 kr.
- Grundskyld
- 10.552 kr.
- Årlige driftsudgifter
- 1 kr.
- Vurderingsår
- 2020
- Ejendomsværdi
- 2.000.000 kr.
- Grundværdi
- 571.000 kr.
Økonomi
- Byggeår / Ombygget
- 1920 / 1986
- Omfattet af energimærke
- Ja
- Energimærke
- D
Ejendommen

Glæden ved at få forhandlingerne på plads
At være erhvervsmægler betyder for mig, at skabe tillid og gode relationer til vores kunde, samt at have mange bolde i luften. Glæden ved at få forhandlingerne på plads i en handel eller udlejning er fantastisk, og giver blot "blod på tanden" til at få indgået endnu flere aftaler.

