Vestermarken 3
6.195.000 kr.

Indflytningsklar kvalitetsvilla med plads til både familieliv og erhverv.
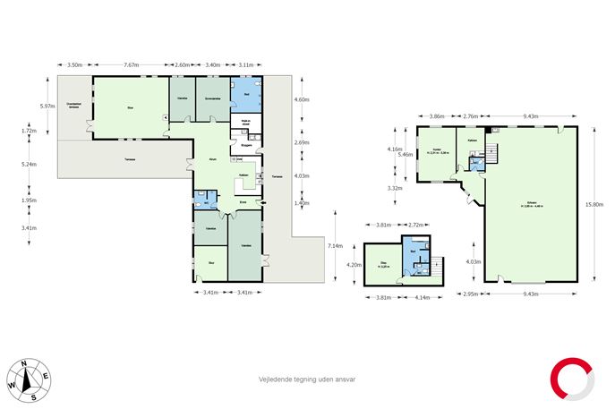
Boligen – gennemført kvalitet og god pladsVillaen fremstår i særdeles velholdt stand med nye lofter (gips) og gennemgående smukke gulve, der binder boligen sammen i et stilrent og moderne udtryk.
Stue: Stor og lys stue med loft til kip, et fantastisk rum med masser af luft og atmosfære – herfra er der udgang til en dejlig overdækket terrasse, der forlænger sommeren og indbyder til mange hyggelige stunder.
Køkken/alrum: Lyst og indbydende køkken/alrum med hvide køkkenelementer, god spiseplads og masser af naturligt lys – et oplagt samlingspunkt for familien.
Værelser: Hele fire store værelser, alle med god plads og anvendelighed – perfekt til børnefamilien, hjemmekontor eller gæsteværelse.
Badeværelser: To flotte og moderne badeværelser, det ene med dobbelt bruseniche, begge med lækre materialer og god rummelighed.
Bryggers: Praktisk og rummeligt bryggers med vaskefaciliteter og god opbevaringsplads.
Haven – tryg og børnevenlig oase
Haven er lukket og privat, ideel til både afslapning og leg. Her er god plads til trampolin, boldspil og terrassehygge – og alt sammen i rolige og grønne omgivelser.
Erhvervsbygning – alsidig og anvendelig
Den tilhørende erhvervsbygning på 248 m² rummer mange muligheder – både for selvstændige, håndværkere eller kreative sjæle:
Stort lager/værksted: Med klinkegulv, masser af dagslys og stor port i gavlen – let adgang for maskiner, varer og køretøjer.
Kontor og frokoststue: Fint indrettet og behageligt arbejdsmiljø med separat toilet.
Kælder: Indeholder omklædningsfaciliteter med bad, depotrum og mindre lager – særdeles praktisk for mange typer erhverv.
Kontakt os på tlf. 70 26 40 44 for flere detaljer om denne spændende ejendom.
Faciliteter
Afstand til
- Råhøjparken/Ormslevvej (Aarhus Kom)172 m
 - Rosenhøj3,1 km
 - Viby Jylland St.4,5 km
 - 501 - Århus Syd Motorvejen5,4 km
 
- Adresse
 - Vestermarken 3
 - Sagsnr.
 - 873904195
 - Ejendomstype
 - Blandet ejendom
 - Handelstype
 - Brugerejendom
 - Pris
 - 6.195.000 kr.
 - Etageareal
 - 482 m²
 
Nøgletal
- Grundareal
 - 1.907 m²
 - Bebygget
 - 440 m²
 - Boligareal
 - 234 m²
 - Erhvervsareal
 - 248 m²
 - Etageareal
 - 482 m²
 
Arealer
- Pris
 - 6.195.000 kr.
 - Pris/m²
 - 12.853 kr.
 - Grundskyld
 - 15.251 kr.
 - Forsikringspræmie
 - 10.735 kr.
 - Årlige driftsudgifter
 - 1 kr.
 - Vurderingsår
 - 2018
 - Ejendomsværdi
 - 3.800.000 kr.
 - Grundværdi
 - 893.900 kr.
 
Økonomi
- Byggeår / Ombygget
 - 2004 / 2009
 - Omfattet af energimærke
 - Ja
 - Energimærke
 - C
 
Ejendommen

Glæden ved at få forhandlingerne på plads
At være erhvervsmægler betyder for mig, at skabe tillid og gode relationer til vores kunde, samt at have mange bolde i luften. Glæden ved at få forhandlingerne på plads i en handel eller udlejning er fantastisk, og giver blot "blod på tanden" til at få indgået endnu flere aftaler.

