Frederiks Plads 36
3.499.429 kr./år
Nyhed

- Adresse
- Frederiks Plads 36
- Sagsnr.
- 812003335
- Ejendomstype
- Kontor
- Årlig leje
- 3.499.429 kr./år
Nøgletal
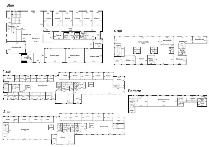
- Etageareal
- 2.119 m²
Arealer
- Årlig leje
- 3.499.429 kr./år
- Månedlig leje
- 291.619 kr.
- Årlig leje pr. m²
- 1.651 kr.
- Årlige driftsudgifter
- 750.126 kr.
- Månedlige driftsudgifter
- 62.510 kr.
- Årlige driftsudgifter pr m²
- 354 kr.
- Bruttoleje pr. år
- 4.249.555 kr.
- Månedlig bruttoleje
- 354.129 kr.
- Årlig bruttoleje pr. m²
- 2.005 kr.
- Depositum
- 1.749.715 kr.
- Elektricitet
- Betales direkte til forsyningsselskab
- Momsregistreret
- Ja
- Afståelsesret
- Nej
Økonomi
- Uopsigelighed fra lejer
- Efter aftale
- Uopsigelighed fra udlejer
- Efter aftale
- Opsigelse
- 6 måneders varsel
- Indvendig vedligeholdelse
- Lejer
- Udvendig vedligeholdelse
- Udlejer
- Lejeregulering
- NPI, dog min. 2,5%
- Afståelsesret
- Nej
Lejeforhold
- Opvarmningstype
- Udefineret
- Byggeår / Ombygget
- 2018
- Omfattet af energimærke
- Ja
- Energimærke
- A2015
Ejendommen


Dan Honoré
Erhvervsmægler, MDE, Diplom i Vurdering

