Anna Klindt Sørensens Gade 4
5.437.266 kr./år

Unik domicil kontor på Godsbanen
• Nyopført domicil med moderne industrielt look• Unik og solrig tagterrasse med udsigt og hyggeligsamvær
• Arkitektonisk DNGB Guld-certificeret kontorejendom i Aarhus C
• Nyopført kontorejendom med moderne industrielt look
• Ejendommen ligger op til Exners Plads, som danner samlingspunkt for området omkring Godsbanen
• Mulighed for parkering i parkeringshuset
Godsbanens nye prominente kontorejendom består af en aktiv stueetage med 1-2 butikslejemål mod Carl Blochs Gade og et større spisested/kantine mod Exners Plads, fem etager med kontorlejemål og øverst en grøn, frodig tagterrasse til rekreation og fest.
Indgangen til ejendommen er placeret midt på bygningens sydlige facade, hvilket sikrer en god synlighed fra Carl Blochs Gade. Herfra er der adgang til hele huset via elevator eller trappe. Mod nord er der ligeledes skabt plads til cykelparkering, hvoraf halvdelen ligger inde i selve huset.
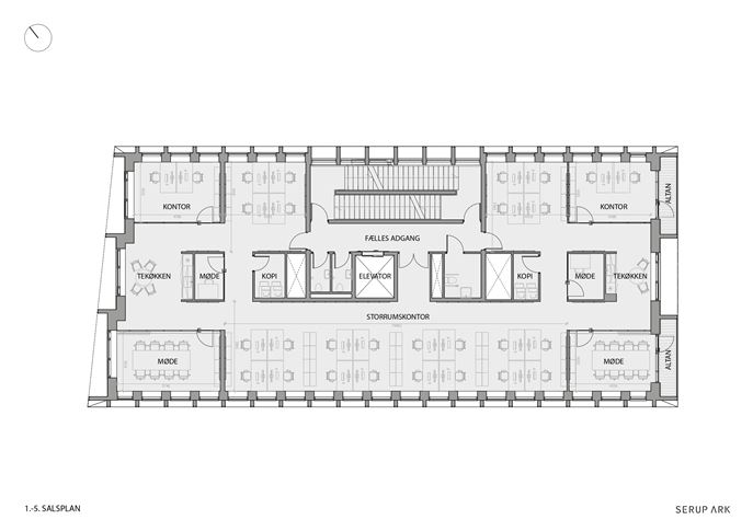
Kontoretagerne rummer hver 465 m², der er indrettet som moderne kontorarbejdspladser med højt til loftet, masser af dagslys samt fleksible indretningsmuligheder. Kontorarbejdspladserne er placeret langs facaderne for at sikre maksimale lysforhold. I hvert hjørne er der skabt mulighed for mødelokaler eller cellekontorer. I den midterste del af etagerne indrettes stillerum, toiletter, depot- og kopirum samt tekøkken. Ejendommen installeres med ventilations- og køleanlæg, for at opnår et sundt og optimale indeklima.
Stueetagen rummer 377 m² og kan benyttes som husets samlingspunkt, ved etablering af en stor kantine, hvor medarbejderne kan nyde frokosten og der kan holdes arrangementer. Ligeledes er det oplagt at etablere mødelokaler i forskellige størrelser og udformninger i stueetagen, hvorved det vil være nemt at tilgå mødeforplejning. Ved etablering af mødelokaler i stueetagen, vil de øvrige kontoretager kunne optimeres til brug for arbejdsstationer.
På øverste etage indrettes en stor og grøn tagterrasse med plads til rekreativt ophold med en række større træer og buske. Tagterrassen vil også kunne bruges til arrangementer, receptioner, festlige lejligheder og/eller blot til en hyggelig fredagsbar. Fra tagterrassen bliver der udsigt henover Aarhus bymidte, udsigt til Rådhustårnet og regnbuen op AROS mv. På tagterrassen indrettes en del af området med et 30 m² stort orangeri, der kan benyttes til selskab eller stører møder.
Kontorhuset har fået navnet FRAMES, da det er opbygget af en stålramme konstruktion (Steel Frame Construction), og med facader i aluminium som indrammer de enkelte vinduer i et stramt grib, der samtidig har reference tilbage til områdets industrielle fortid.
Forventet indflytning efter sommeren 2026.
Faciliteter
- AltanJa
 - CykelparkeringJa
 - KablingJa
 - KantineJa
 - KøkkenfaciliteterJa
 - PersonaleelevatorJa
 - TagterrasseJa
 - ToiletterJa
 - VentilationJa
 
- Adresse
 - Anna Klindt Sørensens Gade 4
 - Sagsnr.
 - 812003257
 - Ejendomstype
 - Kontor
 - Årlig leje
 - 5.437.266 kr./år
 
Nøgletal
- Etageareal
 - 2.662 m²
 
Arealer
- Årlig leje
 - 5.437.266 kr./år
 - Månedlig leje
 - 453.105 kr.
 - Årlig leje pr. m²
 - 2.042 kr.
 - Årlige driftsudgifter
 - 538.400 kr.
 - Månedlige driftsudgifter
 - 44.866 kr.
 - Årlige driftsudgifter pr m²
 - 202 kr.
 - Bruttoleje pr. år
 - 5.975.666 kr.
 - Månedlig bruttoleje
 - 497.972 kr.
 - Årlig bruttoleje pr. m²
 - 2.244 kr.
 - Depositum
 - 0 kr.
 - Elektricitet
 - Betales direkte til forsyningsselskab
 - Momsregistreret
 - Ja
 - Afståelsesret
 - Nej
 
Økonomi
- Uopsigelighed fra lejer
 - Aftales
 - Uopsigelighed fra udlejer
 - Aftales
 - Opsigelse
 - Aftales
 - Indvendig vedligeholdelse
 - Lejer
 - Udvendig vedligeholdelse
 - Udlejer
 - Lejeregulering
 - NPI dog min 3%
 - Afståelsesret
 - Nej
 
Lejeforhold
- Opvarmningstype
 - Fjernvarme/blokvarme (radiatorsystemer eller varmluftanlæg)
 - Antal etager
 - 5
 - Omfattet af energimærke
 - Nej
 
Ejendommen

Dan Honoré
Erhvervsmægler, MDE, Diplom i Vurdering


