Anna Klindt Sørensens Gade 4
154.000 kr./år

Unik mulighed på Godsbanen
• Nyopført erhvervsejendom med detail, café eller restaurant i stueplan• Mulighed for at tilbyde ejendommens kontorlejere madordning
• Attraktiv beliggenhed på det attraktive Godsbanen mod Exners Plads
• Stor synlighed og trafik fra Carl Blochs Gade
• Gode parkeringsmuligheder foran ejendommen eller i p-huset
• Arkitektonisk DNGB Guld-certificeret kontorejendom i Aarhus C
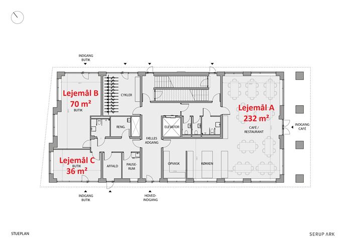
Godsbanens nye prominente kontorejendom består af en aktiv stueetage med 2 butikslejemål mod Carl Blochs Gade og et større spisested/kantine mod Exners Plads, fem etager med kontorlejemål og øverst en grøn, frodig tagterrasse til rekreation og fest.
Ejendommen er beliggende med stor synlighed direkte mod Carl Blochs Gade, ved siden af Arkitektskolen og supermarkedet Lidl. Ligeledes er ejendommen beliggende, med den sydlige facade, mod det kreative Godsbanemiljø og Exners Plads.
Ejendommens stueetage er indrettet med 3 lejemål, der enten kan benyttes til restaurant, café, bager eller butik. De 2 butikslejemål mod Carl Blochs Gade har en stor eksponeringsfacade og er oplagt for almindelig butik, mindre café/bagerudsalg. Lejemålet mod Godsbanen er oplagt til café eller restaurant, hvor der vil være god plads til restaurantens gæster, samt mulighed for udeservering på den sydvendte terrasse. Her bliver ens gæster en naturligdel af Godsbanens unikke miljø, hvor restauranten/caféen vil kunne danne rammerne for god mad, drikkevarer og servering. Det vil ligeledes være muligt at tilbyde ejendommens kontorlejere madordning, i form af morgenmad, frokost og evt. snacks ordninger.
Ejendommen har fået navnet FRAMES, da det er opbygget af en stålramme konstruktion (Steel Frame Construction), og med facader i aluminium som indrammer de enkelte vinduer i et stramt grib, der samtidig har reference tilbage til områdets industrielle fortid.
Forventet indflytning efter sommeren 2026.
Faciliteter
- Bad og omklædningJa
 - KablingJa
 - Parkering17
 - ToiletterJa
 - VentilationJa
 
- Adresse
 - Anna Klindt Sørensens Gade 4
 - Sagsnr.
 - 812003255
 - Ejendomstype
 - Detail
 - Årlig leje
 - 154.000 kr./år
 
Nøgletal
- Etageareal
 - 70 m²
 
Arealer
- Årlig leje
 - 154.000 kr./år
 - Månedlig leje
 - 12.833 kr.
 - Årlig leje pr. m²
 - 2.200 kr.
 - Årlige driftsudgifter
 - 14.000 kr.
 - Månedlige driftsudgifter
 - 1.166 kr.
 - Årlige driftsudgifter pr m²
 - 200 kr.
 - Bruttoleje pr. år
 - 168.000 kr.
 - Månedlig bruttoleje
 - 14.000 kr.
 - Årlig bruttoleje pr. m²
 - 2.400 kr.
 - Depositum
 - 77.000 kr.
 - Aconto Vandudgift
 - 840 kr.
 - Aconto Varmeudgifter
 - 3.850 kr.
 - Elektricitet
 - Betales direkte til forsyningsselskab
 - Momsregistreret
 - Ja
 - Afståelsesret
 - Nej
 
Økonomi
- Uopsigelighed fra lejer
 - Aftales
 - Uopsigelighed fra udlejer
 - Aftales
 - Opsigelse
 - Aftales
 - Indvendig vedligeholdelse
 - Lejer
 - Udvendig vedligeholdelse
 - Udlejer
 - Lejeregulering
 - NPI dog min 3%
 - Afståelsesret
 - Nej
 
Lejeforhold
- Opvarmningstype
 - Fjernvarme/blokvarme (radiatorsystemer eller varmluftanlæg)
 - Antal etager
 - 5
 - Omfattet af energimærke
 - Nej
 
Ejendommen

Dan Honoré
Erhvervsmægler, MDE, Diplom i Vurdering


