Hasselager Allé 13D
2.959.000 kr./år

Nyopført kontorlejemål med sans for kvalitet og detaljer!
• De lækreste kontorlokaler i Aarhus Syd – tæt på E45, Genvejen, Letbanen og kun 3 km fra Rådhuspladsen• Tæt på fredet natur og med Udsigt over hele Aarhus
• Nyopført og tegnet af den anerkendte arkitektvirksomhed C.F. Møller. DGNB-Guld specifikationer
• Stor fælleskantine og tagterrasse
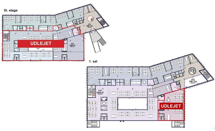
• Muligt at leje fra 793 til 2.690 m² kontor
• Opføres efter DGNB-Guld specifikationer
Ønsker din virksomhed nye kontorlokaler hvor høj kvalitet, funktionalitet og sans for detaljerne har første prioritet, så er dette kontorlejemål - tegnet af C.F. Møller Arkitekterne - noget for jer! Nogle af de mange detaljer og bevidste materialevalg er blandt andet tombak solafskærmning, eksklusive natursten og facademursten af højkvalitet, samt solceller på taget.
Ejendommen er velbeliggende på Haselager Allé 13D, tilbagetrukket fra trafikken på Møllebakken og tæt på Genvejen, samt få minutters gang til Let- banestop. Det vil være muligt at leje fra 793 til 2.690 m² kontor, hvorved alt fra ca. 40 til 135 arbejdsstationer kan indrettes.
Størstedelen af kontorarealerne er placeret mod nord, hvorved der er en fantastik og levende udsigt indover Aarhus by. Ejendommens atrium er beplantet med planter, der giver et fantastik liv ind i lejemålene. Lejemålene er indrettet med egetræsgulve, en loftshøjde på 3,4 meter der sikre en god atmosfære, samt LED-belysning der sikre behagelig og optimalbelysning. Ligeledes er lejemålene udstyret med ventilations - og klimaanlæg, for at sikre et optimalt indeklima og arbejdsmiljø for medarbejderen. Lejemålene er indrettet med mødelokaler i forskellige størrelser, toiletter og tekøkken. I ejendommens fællesarealer forefindes ligeledes mødelokaler, såfremt mere personlige/fortrolige samtaler skal afholdes. På ejendommens 2. etage er en stor og indbydende fælleskantine, hvor frokosten kan nydes. Fra kantinen er der udgang til en stor sydvendt tagterrasse, der er et af ejendommens naturlige samlingspunkter, hvor frokosten og samvær med kollegaer nydes. Af øvrige fællesfaciliteter, kan nævnes omklædning og badefaciliteter i kælderen, samt cykelparkering.
Der forefindes ca. 100 parkeringspladser på terræn og i parkeringskælderen. Der er ligeledes etableret 13 ladestationer for el-biler, samt 2 HC-pladser. Cykelparkering forefindes på terræn eller i den aflæste parkeringskælder.
Ejendommen er opført efter DGNB-Guld certificeringsreglerne, dog er ejendommen ikke officielt certificeret.
Faciliteter
- Bad og omklædningJa
 - CykelparkeringJa
 - Fælles mødefaciliteterJa
 - KablingJa
 - KantineJa
 - KøkkenfaciliteterJa
 - MødefaciliteterJa
 - PersonaleelevatorJa
 - TagterrasseJa
 - ToiletterJa
 - VentilationJa
 - VinduestypeTermo
 
- Adresse
 - Hasselager Allé 13D
 - Sagsnr.
 - 812003036
 - Ejendomstype
 - Kontor
 - Årlig leje
 - 2.959.000 kr./år
 
Nøgletal
- Etageareal
 - 2.690 m²
 
Arealer
- Årlig leje
 - 2.959.000 kr./år
 - Månedlig leje
 - 246.583 kr.
 - Årlig leje pr. m²
 - 1.100 kr.
 - Årlige driftsudgifter
 - 538.000 kr.
 - Månedlige driftsudgifter
 - 44.833 kr.
 - Årlige driftsudgifter pr m²
 - 200 kr.
 - Bruttoleje pr. år
 - 3.497.000 kr.
 - Månedlig bruttoleje
 - 291.416 kr.
 - Årlig bruttoleje pr. m²
 - 1.300 kr.
 - Depositum
 - 0 kr.
 - Aconto Vandudgift
 - 53.800 kr.
 - Aconto Varmeudgifter
 - 215.200 kr.
 - Elektricitet
 - Direkte til leverandøren
 - Momsregistreret
 - Ja
 - Afståelsesret
 - Nej
 
Økonomi
- Uopsigelighed fra lejer
 - 3 - 5 år
 - Uopsigelighed fra udlejer
 - 3 - 5 år
 - Opsigelse
 - 6 måneder
 - Indvendig vedligeholdelse
 - Lejer
 - Udvendig vedligeholdelse
 - Udlejer
 - Lejeregulering
 - NPI, dog min. 2,5%
 - Overtagelsesdato
 - 1. sep. 2025
 - Afståelsesret
 - Nej
 
Lejeforhold
- Opvarmningstype
 - Fjernvarme/blokvarme (radiatorsystemer eller varmluftanlæg)
 - Byggeår / Ombygget
 - 2025
 - Omfattet af energimærke
 - Nej
 
Ejendommen

Dan Honoré
Erhvervsmægler, MDE, Diplom i Vurdering


