Danmarksvej 32F
273.750 kr./år

Synligt erhvervslejemål i Skanderborg – ideelt til detail, showroom eller udstilling
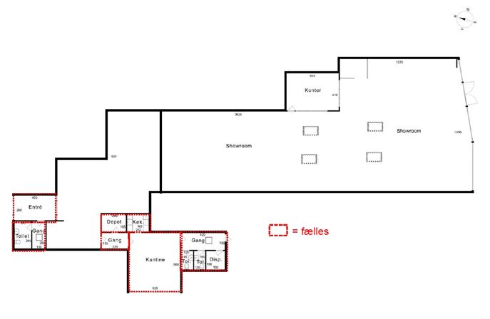
Nu udbydes et markant og synligt erhvervslejemål på 365 m² samt 62 m² fællesfaciliteter beliggende på Danmarksvej 32F i Skanderborg – en attraktiv adresse med høj trafik og stor synlighed.Ejendommen er placeret i et område med mange forbipasserende både i bil og til fods, og den flotte glasfacade giver optimal eksponering og indkig til lokalet – perfekt for dig, der ønsker at præsentere produkter eller services på en iøjnefaldende måde.
Lejemålet fremstår lyst og præsentabelt med store, hvide klinkegulve, som skaber et moderne og rent udtryk. Indretningen er fleksibel og kan opdeles efter lejers ønsker, hvilket gør det muligt at tilpasse lokalet til netop din forretnings behov. Som fællesarealer er der endvidere kantine, toiletter, rengøringsrum, mv.
Drift/fællesudgifter inkludere en all-inclusive aftale for fællesfaciliteter således rengøring, lys/vand, mv. samt endvidere udvendig vinduespudsning, snerydning/saltning samt græsslåning for nærværende lejemål.
Der er gode parkeringsforhold lige ved døren, hvilket giver nem adgang for både kunder og personale. Med sin størrelse, beliggenhed og indretning er lejemålet velegnet til mange typer erhverv, herunder:
- Detailhandel
- Showroom
- Båd- eller cykeludstilling
- Outdoor- og fritidsbutik
- Specialbutik eller galleri
Her får du en sjælden mulighed for at placere din virksomhed i ét af Skanderborgs bedst eksponerede erhvervslejemål – med stor fleksibilitet og attraktive rammer.
Faciliteter
- FacadelængdeEjendommen har en facadelængde på 14,0 meter
- KøkkenfaciliteterJa
- ToiletterJa
- VinduestypeTermo
Afstand til
- Sverigesvej/Stilling Landevej (Skanderborg Kom)537 m
- Skanderborg St.2,4 km
- E 45 - Østjyske Motorvej3,5 km
- Adresse
- Danmarksvej 32F
- Sagsnr.
- 811002657
- Ejendomstype
- Detail
- Årlig leje
- 273.750 kr./år
- Erhvervsareal
- 427 m²
Nøgletal
- Grundareal
- 6.347 m²
- Erhvervsareal
- 427 m²
- Etageareal
- 427 m²
Arealer
- Årlig leje
- 273.750 kr./år
- Månedlig leje
- 22.812 kr.
- Årlig leje pr. m²
- 641 kr.
- Årlige driftsudgifter
- 16.800 kr.
- Månedlige driftsudgifter
- 1.400 kr.
- Årlige driftsudgifter pr m²
- 39 kr.
- Bruttoleje pr. år
- 290.550 kr.
- Månedlig bruttoleje
- 24.212 kr.
- Årlig bruttoleje pr. m²
- 680 kr.
- Depositum
- 131.250 kr.
- Aconto Varmeudgifter
- 16.000 kr.
- Elektricitet
- Afregnes efter bimåler
- Momsregistreret
- Ja
- Afståelsesret
- Ja
Økonomi
- Uopsigelighed fra lejer
- 3 år
- Uopsigelighed fra udlejer
- Jf. erhvervslejeloven
- Opsigelse
- 6 mdr.
- Indvendig vedligeholdelse
- Lejer
- Udvendig vedligeholdelse
- Udlejer
- Lejeregulering
- NPI
- Overtagelse
- Aftales
- Afståelsesret
- Ja
Lejeforhold
- Opvarmningstype
- Fjernvarme/blokvarme (radiatorsystemer eller varmluftanlæg)
- Byggeår / Ombygget
- 1986 / 2000
- Omfattet af energimærke
- Ja
- Energimærke
- D
Ejendommen



