Møllegade 19 st og 21 st
1.650.000 kr.

Beliggende centralt i Ikast tilbyder disse to attraktive erhvervsejerlejligheder en unik mulighed.
Ejendommen, der er opført i 1978, fremstår i klassiske kalksandsten med et robust built-up tag og med trævinduer og termoruder, der giver et behageligt lysindfald og synlighed ved de store udstillingsvinduer.Ejendommen er opdelt i fem ejerlejligheder, hvoraf de to erhvervsenheder er til salg.
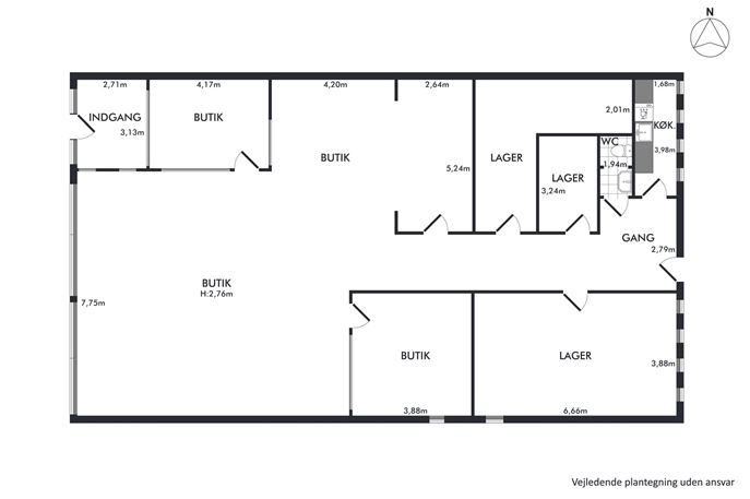
Fleksibelt indrettet med detailareal, lager, kontor, kantine og toiletfaciliteter. Den gode loftshøjde på 2,90 meter bidrager yderligere til de mange anvendelsesmuligheder.
Gulvbelægningen, en praktisk kombination af vinyl og tæppe, er nem at vedligeholde.
Hertil følger tre selvstændige parkeringspladser samt en garage, der i dag anvendes som ekstra lagerplads, hvilket giver en stor fordel i hverdagen.
Ejendommens facade er udstyret med en stor baldakin, der strækker sig langs hele bygningen. Dette giver gode muligheder for synlig skiltning og eksponering.
Velegnet for en bred vifte af erhverv, herunder:
Frisørsalon
Kontor
Restaurant
Serviceerhverv
Showroom
Kontakt os for en fremvisning, og lad os sammen, finde potentialet i erhvervsejendom.
Faciliteter
- FacadelængdeEjendommen har en facadelængde på 30,0 meter
- Indlagt elIndlagt el sikret med 63 ampere
- KøkkenfaciliteterJa
- LoftshøjdeEjendommen har en loftshøjde på 2,9 meter
- VinduestypeTermo
Afstand til
- Torvet/Rådhusstræde (Ikast-Brande Kom)226 m
- Ikast St.1,1 km
- 15 - Herningmotorvejen3,0 km
- Adresse
- Møllegade 19 st og 21 st
- Sagsnr.
- 709007324
- Ejendomstype
- Detail
- Handelstype
- Brugerejendom
- Pris
- 1.650.000 kr.
- Etageareal
- 534 m²
Nøgletal
- Erhvervsareal
- 534 m²
- Etageareal
- 534 m²
Arealer
- Pris
- 1.650.000 kr.
- Pris/m²
- 3.090 kr.
- Ejendomsskatter
- 128 kr.
- Grundskyld
- 9.195 kr.
- Bidrag til forening
- 32.500 kr.
- Årlige driftsudgifter
- 41.823 kr.
- Vurderingsår
- 2020
- Ejendomsværdi
- 1.980.000 kr.
- Grundværdi
- 546.300 kr.
Økonomi
- Byggeår / Ombygget
- 1978
- Omfattet af energimærke
- Ja
- Energimærke
- C
Ejendommen



