Bredgade 9
1.295.000 kr.

Velholdt og alsidig erhvervsejendom midt i Sønder Felding
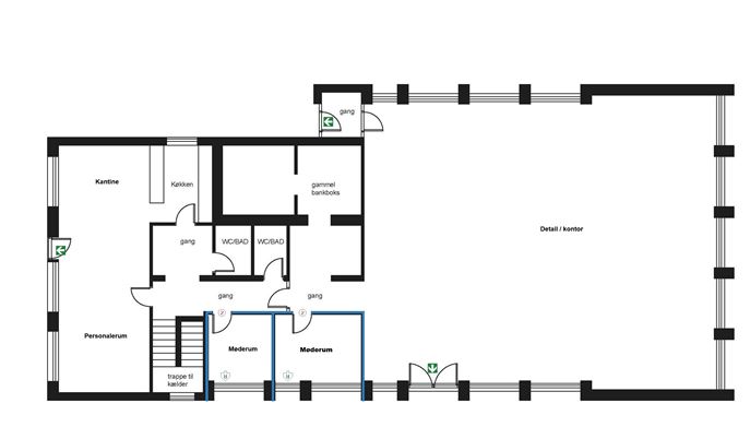
På en attraktiv og centralt placeret adresse i Sønder Felding finder man denne veldisponerede erhvervsejendom. Ejendommen tilbyder et væld af anvendelsesmuligheder, der både henvender sig til investorer,projektudviklere, virksomheder og organisationer med behov for synlighed, gode parkeringsforhold og en fleksibel planløsning.Opført i 1979 fremstår ejendommen præsentabel med karakteristiske facadefremspring og byggestil typisk for perioden. Facaden i røde sten kombineret med det markante build-uptag giver bygningen et gedigent udtryk.Stueetagen byder på et stort, åbent erhvervsareal, som tidligere har huset bankdrift — ideelt til detailbutik, klinik, showroom, kontorlandskab eller kombination heraf. Lokalerne har god loftshøjde og fremstår lyse og indbydende. Derudover kantine med adgang til køkken og flere mødelokaler, hvilket gør ejendommen særdeles anvendelig til eksempelvis kontordomicil. Yderligere byder stueetagen på et fuldt integreret boksanlæg med flere depot- og arkivrum, hvilket giver enestående opbevaringsmuligheder eller bare en fantastisk historisk detalje fra den tidligere bankfilial.
Kælderen er funktionel og kan udnyttes til arkivrum, personalefaciliteter eller lignende.Dennuværendeindretninggørejendommenideeltilenbredvifteafformål. Den kan udnyttes som helhed af én virksomhed eller opdeles i separate enhedermedegenadgang,hvilketmuliggørudlejningellerflerbrugerdrift.
En anden af ejendommens stærke sider er parkeringsarealet — her er der plads til ca. 18 biler direkte på grunden. Det er en sjældenhed for denne størrelse ejendom og gør daglig drift, kundebesøg og medarbejderparkering ubesværet.
Ejendommen fremstår generelt i god vedligeholdelsesmæssig stand og vil med få opdateringer kunne tilpasses individuelle behov og visuelle udtryk.
Denne ejendom er en solid investering med gode driftsperspektiver — uanset om man ønsker at flytte sin virksomhed til egne lokaler, udleje dele af ejendommen, eller anvende den som flerbrugerhus med varieret funktion.
Foretrækker man fremfor køb at leje ejendommen er dette også en mulighed –sagen kan findes her www.edc.dk/709007319
Faciliteter
- AlarmJa
 - Bad og omklædningJa
 - CykelparkeringJa
 - Fælles mødefaciliteterJa
 - IndretningJa
 - KablingJa
 - KøkkenfaciliteterJa
 - MødefaciliteterJa
 - ToiletterJa
 - UdenomsarealerBefæstet
 - VentilationJa
 - VinduestypeTermo
 
Afstand til
- Sønder Felding Rtb. (Herning Kom)331 m
 - 18 - Midtjyske Motorvej18,3 km
 
- Adresse
 - Bredgade 9
 - Sagsnr.
 - 709007311
 - Ejendomstype
 - Kontor
 - Handelstype
 - Brugerejendom
 - Pris
 - 1.295.000 kr.
 - Etageareal
 - 367 m²
 - Kælder
 - 115 m²
 
Nøgletal
- Grundareal
 - 1.492 m²
 - Bebygget
 - 367 m²
 - Erhvervsareal
 - 367 m²
 - Kontorareal
 - 367 m²
 - Etageareal
 - 367 m²
 - Kælder
 - 115 m²
 
Arealer
- Pris
 - 1.295.000 kr.
 - Pris/m²
 - 3.529 kr.
 - Grundskyld
 - 1.370 kr.
 - Forsikringspræmie
 - 3.156 kr.
 - Årlige driftsudgifter
 - 4.526 kr.
 - Vurderingsår
 - 2020
 - Ejendomsværdi
 - 2.500.000 kr.
 - Grundværdi
 - 121.700 kr.
 
Økonomi
- Antal etager
 - 2
 - Byggeår / Ombygget
 - 1979
 - Omfattet af energimærke
 - Ja
 - Energimærke
 - C
 
Ejendommen

Michael Fænø
Partner, Erhverv, HD-FR, MDE, DiplomValuar


