Siriusvej 5
13.800.000 kr.


Flot og præsentabel bilhus med topfaciliteter og synlig placering!
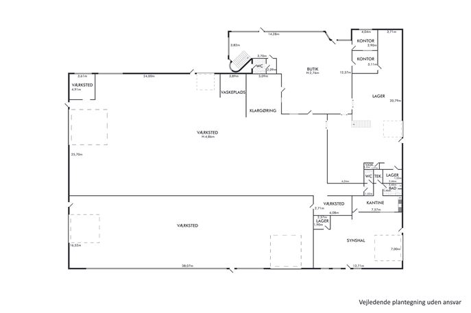
Nu udbydes dette moderne og velindrettede bilhus – en ejendom med masser af muligheder og en markant facade direkte mod Vestergade/Hovedgaden. STS Biler A/S har indgået lejeaftale med uopsigelighed frem til september 2032.Bygningen fremstår lys og indbydende med store glaspartier, der skaber et flot udstillingsmiljø og masser af naturligt lys. Her er tænkt på det hele: Flere porte giver nem adgang til værksteds- eller klargøringsområder, mens kontor- og personalefaciliteterne er i top – herunder velholdt køkken, gode toiletfaciliteter og tilhørende brusebad.
Ejendommen byder desuden på et indhegnet udendørsområde, oplagt til bilopbevaring eller anden udendørs aktivitet, samt en pæn og indbydende parkeringsplads til kunder. I gavlen findes et mindre separat lejemål, der i dag anvendes som synshal.
Det imponerende bilhuser løbende vedligeholdt og således er hele taget løbende skiftet inden for de seneste tre år, mens facaden og sternen blev renoveret i 2023. Ejendommen er ligeledes opdateret til dagens standarder med eksempelvis elladestandere.
Sælges som udgangspunkt som selskabshandel, hvor der er pt. udskudt skat på kr. 2.100.000.
Faciliteter
- AdgangsforholdJa
 - AlarmJa
 - Bad og omklædningJa
 - Fælles mødefaciliteterJa
 - KablingJa
 - KameraovervågningJa
 - KøkkenfaciliteterJa
 - MødefaciliteterJa
 - ToiletterJa
 - UdenomsarealerBefæstet
 
Afstand til
- Neptunvej/Vestergade (Ikast-Brande Kom)174 m
 - Ikast St.1,5 km
 - 15 - Herningmotorvejen3,4 km
 
- Adresse
 - Siriusvej 5
 - Sagsnr.
 - 709007303
 - Ejendomstype
 - Detail
 - Handelstype
 - Investering
 - Pris
 - 13.800.000 kr.
 - Afkast
 - 7,40 %
 - Etageareal
 - 2.541 m²
 
Nøgletal
- Grundareal
 - 7.109 m²
 - Bebygget
 - 2.365 m²
 - Erhvervsareal
 - 2.541 m²
 - Etageareal
 - 2.541 m²
 
Arealer
- Pris
 - 13.800.000 kr.
 - Pris/m²
 - 5.431 kr.
 - Lejefaktor
 - 12.24
 - Lejeindtægt
 - 1.127.012 kr.
 - Årlig lejeindtægt pr m²
 - 443 kr.
 - Årlige driftsudgifter
 - 143.929 kr.
 - Årlige driftsudgifter pr m²
 - 57 kr.
 - Afkast
 - 7,40 %
 - Afskrivningsberettiget
 - Ja
 - Momsregistreret
 - Ja
 
Økonomi
- Byggeår / Ombygget
 - 1972 / 2003
 - Omfattet af energimærke
 - Ja
 - Energimærke
 - C
 
Ejendommen


Michael Fænø
Partner, Erhverv, HD-FR, MDE, DiplomValuar

