Strandvejen 111
240.000 kr./år

Spændende kontorlokaler i naturskønne omgivelser i udkanten af Slagelse
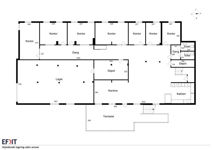
Nu udbydes ca. 400 m² erhvervslejemål i stueplan, bestående af kontorer, personalefaciliteter og mindre lager. Lokalerne fremstår lyse, indbydende og indflytningsklare. Lejemålet er indrettet med X selvstændige kontorer, stort åbent køkken/fællesrum med udgang til hyggelig træterrasse. Herudover har man adgang til lagerlokale, hvorfra det er muligt at lave en selvstændig indgang.Lejemålet er beliggende i istandsat længe på en landejendom, som i dag består af to separate lejemål på hhv. 1. sal (410 m² - udlejet) og stueplan (400 m²). Såfremt flere m² ønskes er dette også en mulighed.
Ejendommen er beliggende lige ved bygrænsen til Slagelse, med gode tilkørselsforhold, lige ud til omfartsvejen, hvorfra man hurtigt når Slagelse centrum samt motorvejstilkørsel mod København/Odense.
Udlejningen er en fremleje for nuværende lejer og løber som udgangspunkt frem til juni 2028.
Faciliteter
- GårdmiljøJa
 - KøkkenfaciliteterJa
 - MødefaciliteterJa
 - ToiletterJa
 
Afstand til
- Stjernebakken (Marievangsvej)714 m
 - E 20 - Vestmotorvejen2,8 km
 - Slagelse St.3,6 km
 
- Adresse
 - Strandvejen 111
 - Sagsnr.
 - 474013359
 - Ejendomstype
 - Kontor
 - Årlig leje
 - 240.000 kr./år
 - Erhvervsareal
 - 400 m²
 
Nøgletal
- Erhvervsareal
 - 400 m²
 - Etageareal
 - 400 m²
 
Arealer
- Årlig leje
 - 240.000 kr./år
 - Månedlig leje
 - 20.000 kr.
 - Årlig leje pr. m²
 - 600 kr.
 - Bruttoleje pr. år
 - 240.000 kr.
 - Månedlig bruttoleje
 - 20.000 kr.
 - Årlig bruttoleje pr. m²
 - 600 kr.
 - Depositum
 - 60.000 kr.
 - Aconto Vandudgift
 - 1.234 kr.
 - Aconto Varmeudgifter
 - 1.234 kr.
 - Elektricitet
 - Betales direkte til forsyning
 - Momsregistreret
 - Ja
 - Afståelsesret
 - Nej
 
Økonomi
- Uopsigelighed fra lejer
 - Aftales
 - Uopsigelighed fra udlejer
 - Fremleje - løbetid frem til 30/6-28
 - Opsigelse
 - Aftales
 - Indvendig vedligeholdelse
 - Lejer
 - Udvendig vedligeholdelse
 - Udlejer
 - Lejeregulering
 - Ingen
 - Overtagelse
 - Aftales
 - Afståelsesret
 - Nej
 
Lejeforhold
- Opvarmningstype
 - Ovne (kakkelovne, kamin, brændeovn og lignende)
 - Antal etager
 - 1
 - Byggeår / Ombygget
 - 1930
 - Omfattet af energimærke
 - Nej
 
Ejendommen



