Lindevej 45
I licitation
Nyhed

Offentligt udbud af tidl. biblioteksejendom
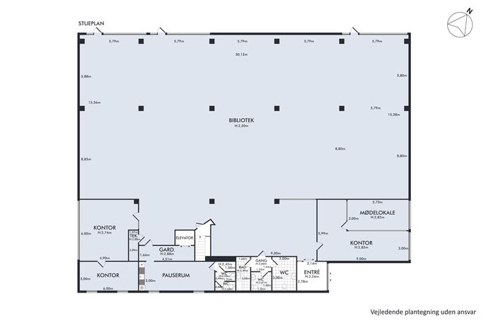
Ejendommen rummer et bygningsareal på 756 m² + 122 m² kælder og ligger ned til Præstø Fjord. Bygningen er opført 1971 og med til-/ombygning i 2008 til brug som bibliotek.Bygningen er derfor også indrettet som typisk bibliotek med stort regulært biblioteksrum i ét plan med tilhørende mindre kontor, personalesum, og kundetoiletter. Ejendommen tilgås via entre med skydedøre.
Bygningen er opført i mursten der er pudset hvide og built-up tag med tagpap.
Ejendommen fremstår overordnet set i pæn stand dog vil samtlige vinduer og rammer på nordsiden skulle udskiftes da de er nedbrudt. Tillige er det oplyst at der omkring lyskasserne i taget er enkelte utætheder.
Grunden har et BBR-areal på 3.723², men i forbindelse med salget frastykkes et mindre område mod vejen på ca. 933 m² jf. skitse fra landmåler vedlagt sagens dokumenter.
Foran bygningen er der udlagt stort parkeringsområde og niveaufri gangareal op til hovedindgang.
Ejendommen vil oplagt kunne anvendes til kontor- eller klinikformål, men der er også mulighed for at konvertere den til boligformål.
Tilbudsfristen er fastsat til den 20. januar 2026. Salget forventes politisk behandlet ultimo februar 2026 og ejendommen vil kunne overtages efter nærmere aftale dog forventeligt tidligst fra 1. april 2026.
Faciliteter
- KablingJa
 - KælderrumJa
 - KøkkenfaciliteterJa
 - MødefaciliteterJa
 - ToiletterJa
 - UdenomsarealerDelvist befæstet
 - VinduestypeTermo
 
Afstand til
- Rosagervej/Østerbro skole (Rosagervej)817 m
 - E 478,5 km
 
- Adresse
 - Lindevej 45
 - Sagsnr.
 - 473019725
 - Ejendomstype
 - Kontor
 - Handelstype
 - Licitation/Udbud
 - Pris
 - I licitation
 - Etageareal
 - 756 m²
 - Kælder
 - 122 m²
 
Nøgletal
- Grundareal
 - 3.723 m²
 - Bebygget
 - 756 m²
 - Erhvervsareal
 - 756 m²
 - Kontorareal
 - 756 m²
 - Etageareal
 - 756 m²
 - Kælder
 - 122 m²
 
Arealer
- Pris
 - I licitation
 - Pris/m²
 - 5.556 kr.
 - Vurderingsår
 - 2018
 - Ejendomsværdi
 - 5.250.000 kr.
 - Grundværdi
 - 1.396.800 kr.
 
Økonomi
- Forsikringen omfatter:
 - Brand, Bygning
 - Antal etager
 - 1
 - Byggeår / Ombygget
 - 1971 / 2008
 - Omfattet af energimærke
 - Ja
 - Energimærke
 - C
 
Ejendommen

Allan Bødtger Simonsen
Diplomvaluar, Cand.merc.(jur.), MDE


