Mellem Broerne 14
859.020 kr./år

Unikke kontor-/kliniklokaler i ikonisk ejendom i Ringsted
• Unik arkitektur – Cirkulær bygning med flotte rundede rum og et særligt look• Stor fleksibilitet – Ingen faste vægge giver mulighed for både storrumskontor og klinik
• Fantastisk lysindfald – Store vinduer og god loftshøjde, skaber et lyst og behageligt arbejdsmiljø
• Istandsættes efter aftale – Lokalerne kan tilpasses præcis efter din virksomheds behov
• Central beliggenhed – Nem adgang til motorvejsnet og offentlig transport
Nu har du muligheden for at leje en af Ringsteds mest unikke kontorejendomme!
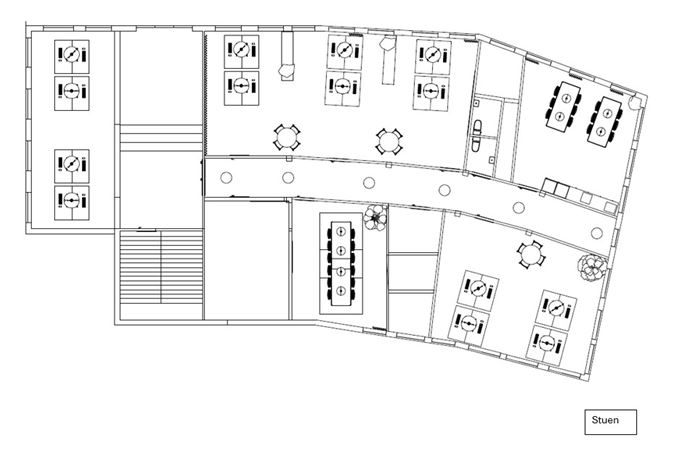
På Mellem Broerne 14 finder du en charmerende og arkitektonisk interessant bygning fra 1940, der med sin bløde, cirkulære form skaber en helt særlig atmosfære.
Ejendommen rummer 824 m² kontorareal samt en 412 m² høj, lys kælder, der giver et væld af anvendelsesmuligheder. De store vinduespartier sikrer et fantastisk lysindfald, mens den gode loftshøjde understøtter en åben og indbydende arbejdsatmosfære. Det er muligt at leje en etage på 412 m² kontor eller kælder, to etager på 824 m² kontor eller alle tre etager med 824 m² kontor og 412 m² kælder.
Fleksible lokaler tilpasset dine behov
En af de helt store fordele ved denne ejendom er, at den i sin nuværende form ikke har faste vægge, hvilket giver en sjælden fleksibilitet i indretningen. Det betyder, at lokalerne kan tilpasses præcis til dine behov – hvad enten du drømmer om et storrumskontor, kliniklokaler eller en kombination af åbne og lukkede rum.
Vi tilbyder at istandsætte lokalerne i samarbejde med den nye lejer, så de bliver skabt til netop din virksomheds ønsker og krav.
En central beliggenhed
Mellem Broerne 14 ligger ideelt placeret i Ringsted med nem adgang til både motorvejsnettet og offentlig transport. Det gør det let for medarbejdere, kunder og samarbejdspartnere at komme til og fra ejendommen.
Har du brug for unikke, lyse og rummelige kontorlokaler med masser af muligheder? Så kontakt os for en fremvisning – vi glæder os til at vise dig rundt!
Faciliteter
- IndretningJa
 - KælderrumJa
 - KøkkenfaciliteterJa
 - MødefaciliteterJa
 - ToiletterJa
 
Afstand til
- Haslevvej (Balstrupvej)68 m
 - Ringsted St.1,2 km
 - E 20 - Vestmotorvejen2,8 km
 
- Adresse
 - Mellem Broerne 14
 - Sagsnr.
 - 403600825
 - Ejendomstype
 - Kontor
 - Årlig leje
 - 859.020 kr./år
 - Erhvervsareal
 - 1.236 m²
 - Kælder
 - 412 m²
 
Nøgletal
- Grundareal
 - 1.186 m²
 - Bebygget
 - 1.289 m²
 - Erhvervsareal
 - 1.236 m²
 - Etageareal
 - 1.236 m²
 - Kælder
 - 412 m²
 
Arealer
- Årlig leje
 - 859.020 kr./år
 - Månedlig leje
 - 71.585 kr.
 - Årlig leje pr. m²
 - 695 kr.
 - Bruttoleje pr. år
 - 859.020 kr.
 - Månedlig bruttoleje
 - 71.585 kr.
 - Årlig bruttoleje pr. m²
 - 695 kr.
 - Depositum
 - 429.510 kr.
 - Momsregistreret
 - Ja
 - Afståelsesret
 - Nej
 
Økonomi
- Uopsigelighed fra lejer
 - 2 år
 - Uopsigelighed fra udlejer
 - 4 år
 - Opsigelse
 - 6 måneder
 - Indvendig vedligeholdelse
 - Lejer
 - Udvendig vedligeholdelse
 - Udlejer
 - Lejeregulering
 - NPI, min 2,5%
 - Overtagelse
 - Efter aftale
 - Afståelsesret
 - Nej
 
Lejeforhold
- Opvarmningstype
 - Fjernvarme/blokvarme (radiatorsystemer eller varmluftanlæg)
 - Byggeår / Ombygget
 - 1940 / 1982
 - Omfattet af energimærke
 - Ja
 - Energimærke
 - C
 
Ejendommen

Trine Mandrup
Erhvervsrådgiver, Cand. Merc. Jur.

Mikkel Emil Valeur
Partner, Erhvervsmægler, Cand. merc., Valuar

