Jernbanegade 3 ST 3
243.000 kr./år

162 kvm. butik udbydes i Fredensborg Centret med store facade-/udstillingsvinduer til gågaden
Midt i Fredensborgs hyggelige, summende bymidte udbyder vi spændende og meget velbeliggende butik162 kvm. butik udbydes i Fredensborg Centret med store facade-/udstillingsvinduer til handels-/gågaden samt inde i centret. Der er kundeadgang både fra gaden samt fra centret.
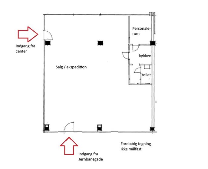
Butikken er indrettet med stort salgsareal, baglokale, personalrum, køkken samt toilet.
Butikken har en årrække rummet Fredensborg Apotek, som flytter ’ned ad vejen’.
Fredensborg gågade er områdets mest besøgte handelsstrøg og området rummer et væld af specialbutikker, supermarkeder, saloner og cafeer/spisesteder, der tiltrækker et stort og stabilt kundebesøg dagligt.
Området har således et stort og købedygtigt opland, hvilket gør området interessant for de handlende.
Butikken er perfekt til specialforretning, showroom, café, tøjbutik, klinik eller lignende erhverv.
Der er gode parkeringsmuligheder p å de omkringliggende veje. Butikken ligger blot 1 minuts gang fra et busstoppested og 5 minutters gang fra Fredensborg Station, hvilket sikrer nem adgang med offentlig transport.
Butikken ligger i en velordnet og velholdt center/ejendom, der også huser Fredensborg Bibliotek
Ledig fra 1/1 2026 eller efter aftale
Varme aconto kr. 1.500,- pr.md. Vand aconto kr. 350,- pr.md.
Faciliteter
Afstand til
- Fredensborg Slot (Jernbanegade)145 m
 - Fredensborg St.743 m
 - E 47 - Helsingørmotorvejen7,6 km
 
- Adresse
 - Jernbanegade 3 ST 3
 - Sagsnr.
 - 281470262
 - Ejendomstype
 - Detail
 - Årlig leje
 - 243.000 kr./år
 - Erhvervsareal
 - 162 m²
 
Nøgletal
- Bebygget
 - 162 m²
 - Erhvervsareal
 - 162 m²
 - Etageareal
 - 162 m²
 
Arealer
- Årlig leje
 - 243.000 kr./år
 - Månedlig leje
 - 20.250 kr.
 - Årlig leje pr. m²
 - 1.500 kr.
 - Bruttoleje pr. år
 - 243.000 kr.
 - Månedlig bruttoleje
 - 20.250 kr.
 - Årlig bruttoleje pr. m²
 - 1.500 kr.
 - Depositum
 - 121.000 kr.
 - Aconto Vandudgift
 - 4.200 kr.
 - Aconto Varmeudgifter
 - 18.000 kr.
 - Momsregistreret
 - Ja
 - Afståelsesret
 - Nej
 
Økonomi
- Afståelsesret
 - Nej
 
Lejeforhold
- Opvarmningstype
 - Udefineret
 - Byggeår / Ombygget
 - 1972
 - Omfattet af energimærke
 - Ja
 - Energimærke
 - D
 
Ejendommen



