Jernbanegade 3 ST 3
2.190.000 kr.

162 kvm. butik udbydes i Fredensborg Centret med store udstillingsvinduer til handels-/gågaden
Midt i Fredensborgs hyggelige, summende bymidte udbyder vi spændende og meget velbeliggende butik162 kvm. butik udbydes i Fredensborg Centret med store facade-/udstillingsvinduer til handels-/gågaden samt inde i centret. Der er kundeadgang både fra gaden samt fra centret.
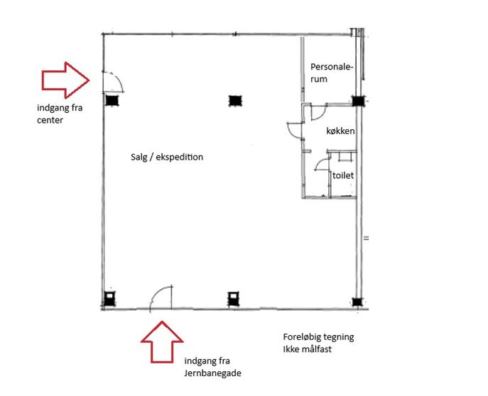
Butikken er indrettet med stort salgsareal, baglokale, personalrum, køkken samt toilet.
Butikken har en årrække rummet Fredensborg Apotek, som flytter ’ned ad vejen’
Fredensborg gågade er områdets mest besøgte handelsstrøg og området rummer et væld af specialbutikker, supermarkeder, saloner og cafeer/spisesteder, der tiltrækker et stort og stabilt kundebesøg dagligt.
Området har således et stort og købedygtigt opland, hvilket gør området interessant for de handlende.
Butikken er perfekt til specialforretning, showroom, café, tøjbutik, klinik eller lignende erhverv.
Der er gode parkeringsmuligheder på de omkringliggende veje. Butikken ligger blot 1 minuts gang fra et busstoppested og 5 minutters gang fra Fredensborg Station, hvilket sikrer nem adgang med offentlig transport.
Butikken er en erhvervsejerlejlighed, der ligger i en velordnet og velholdt center/ejendom, der løbende er vedligeholdt, og som også huser Fredensborg Bibliotek
Ledig fra 1/1 2026 eller efter aftale
Økonomi: Årlige driftsudgifter pt. kr. 76.853 (fællesudgift til ejerforening, grundskyld mm.), svarende kr. 6.404,- pr. måned. Varme aconto kr. 1.500,- pr.md. Vand aconto kr. 350,- pr.md.
Afstand til
- Fredensborg Slot (Jernbanegade)145 m
- Fredensborg St.743 m
- E 47 - Helsingørmotorvejen7,6 km
- Adresse
- Jernbanegade 3 ST 3
- Sagsnr.
- 281470261
- Ejendomstype
- Detail
- Handelstype
- Brugerejendom
- Pris
- 2.190.000 kr.
- Etageareal
- 162 m²
Nøgletal
- Bebygget
- 162 m²
- Erhvervsareal
- 162 m²
- Butiksareal
- 162 m²
- Etageareal
- 162 m²
Arealer
- Pris
- 2.190.000 kr.
- Pris/m²
- 13.519 kr.
- Andre beløb
- 30.250 kr.
- Bidrag til forening
- 40.671 kr.
- Årlige driftsudgifter
- 76.853 kr.
- Vurderingsår
- 2018
- Ejendomsværdi
- 1.900.000 kr.
- Grundværdi
- 272.500 kr.
Økonomi
- Byggeår / Ombygget
- 1972
- Omfattet af energimærke
- Ja
- Energimærke
- D
Ejendommen



