Tinvej 4
377.400 kr./år

Højloftet lager/produktionslejemål med ca. 6 meter til kip i Espergærde
Meget anvendeligt lejemål som henvender sig til en bred vifte at håndværksvirksomheder og lager/ produktionsvirksomheder.Ejendommen har desuden adgang til 200 amp strøm.
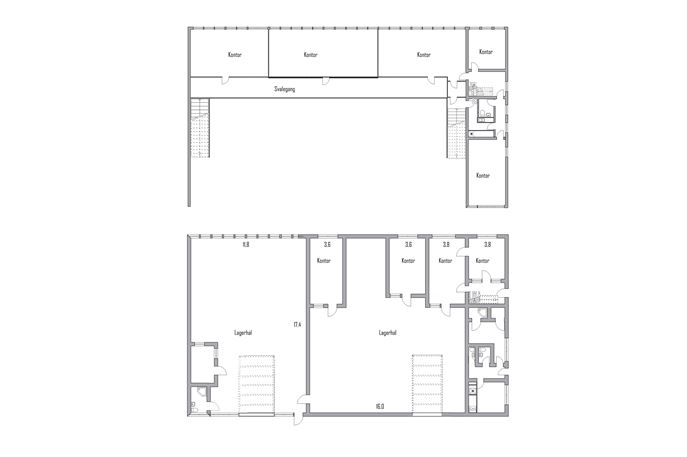
Søjlefrit lager på ca. 550 m², der er opdelt i 2 lagerrum med adgang via port i begge lagerrum. Det er muligt at sammenlægge lagerrummene, der er ca. 6 m til kip. Der indbygget hems i lageret der kan anvendes til kontor eller omdannes lager. Kontorrum i det store lager kan nedlægges og inddrages til lager.
Kundeindgang i front af ejendommen, hvor der er indrettet ca. 50 m² kontor, frokoststue samt toilet og badefaciliteter.
Godt udeareal langs og på bag ved bygningen til parkering.
Infrastrukturen til ejendommen er optimal, nem og kort afstand til motorvej og gå afstand til offentlig transport.
Afstand til
- Hovvej (Søndermarken)554 m
- Mørdrup St.1,3 km
- E 47 - Helsingørmotorvejen2,7 km
- Adresse
- Tinvej 4
- Sagsnr.
- 260998211
- Ejendomstype
- Lager/Produktion
- Årlig leje
- 377.400 kr./år
- Erhvervsareal
- 600 m²
Nøgletal
- Grundareal
- 2.016 m²
- Erhvervsareal
- 600 m²
- Etageareal
- 600 m²
Arealer
- Årlig leje
- 377.400 kr./år
- Månedlig leje
- 31.450 kr.
- Årlig leje pr. m²
- 629 kr.
- Bruttoleje pr. år
- 377.400 kr.
- Månedlig bruttoleje
- 31.450 kr.
- Årlig bruttoleje pr. m²
- 629 kr.
- Depositum
- 160.000 kr.
- Aconto Vandudgift
- 1.200 kr.
- Aconto Varmeudgifter
- 12.000 kr.
- Elektricitet
- Lejer betaler direkte til forsyningsselskab
- Momsregistreret
- Ja
- Afståelsesret
- Nej
Økonomi
- Uopsigelighed fra lejer
- 2 år
- Uopsigelighed fra udlejer
- 4 år
- Opsigelse
- 6 mdr.
- Indvendig vedligeholdelse
- Lejer
- Udvendig vedligeholdelse
- Udlejer
- Lejeregulering
- NPI, dog min 3 %
- Overtagelse
- Efter aftale
- Afståelsesret
- Nej
Lejeforhold
- Opvarmningstype
- Centralvarme fra eget anlæg, et-kammer fyr
- Antal etager
- 1
- Byggeår / Ombygget
- 1972 / 1986
- Omfattet af energimærke
- Nej
Ejendommen

Lotte Bach
Erhvervschef - Valuar & Ejendomsmægler MDE

Nick Søndergaard
Erhvervsmægler, ejendomsmægler, MDE

